Cendes>项目>写字楼、产业园>高金富恒集团总部
四川,成都 客户:高金富恒集团有限公司
规模:84,835 m2
时间:2022
项目地点:四川省成都市高新区新川创新科技园
主创建筑师:陈栗,设计董事
设计团队:杨飞、陈祥、李洪波、郑博旻、杨岩、赵金烜
方案顾问:叶航、金涛、李阳
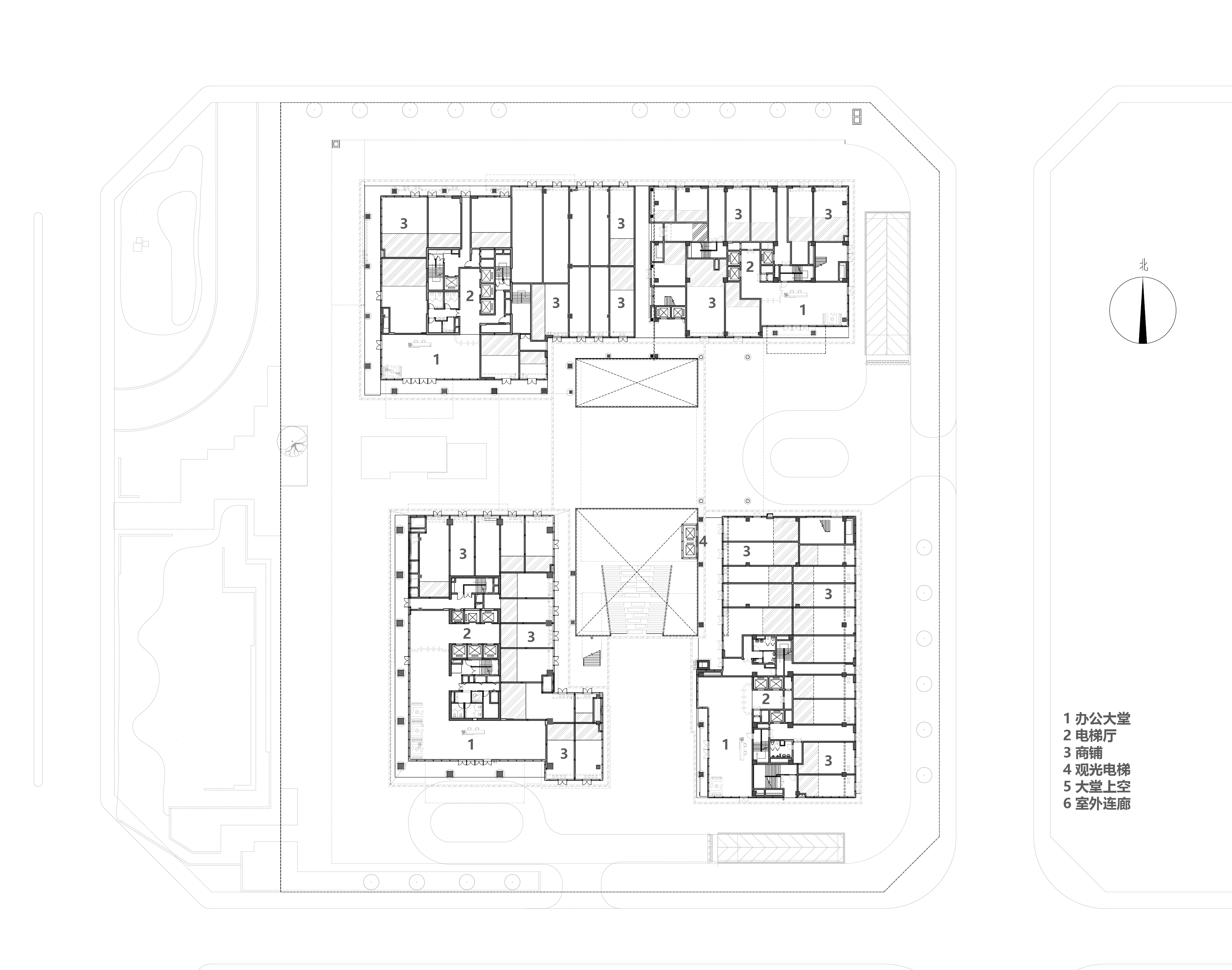
项目主要包括四栋办公楼、裙房及中间围合而成的广场。高低错落的两栋塔楼临近西侧城市主干道,另外两栋低层办公楼位于项目东侧。四栋建筑形成错落有致的空间形态和连贯而丰富的城市天际线。标志性的裸眼3D屏幕位于项目最高办公楼的顶部,是宣传、引流的高新之窗。

建筑面向城市打开,内部设置一条自东向西的景观轴,连通基地西侧30米宽的城市绿地,引入人流的同时将城市绿带转变为总部基地公园。建筑、自然、文化、商业在这里碰撞、交流。

四栋办公塔楼围合,在基地内部形成了一个以立体的步行空间为主导的下沉式商业广场和城市花园,建筑内部如会议洽谈、发布会、艺术装置等多种功能与城市联系起来,多元化的业态承载着丰富的城市场景。

二层的户外环廊将各个功能空间串联,这是一条立体廊道。环形跑道、活动场地、空中餐厅、屋顶花园等多功能空间在这里实现景观资源共享,整个空间充满活力,诠释了一种参与式的城市生活方式。

传统的商业街22点歇业,对于喜欢夜生活的成都人是远远不够的。Cendes试图打造一个24小时开放的空间——一个热闹的城市舞台。这里不再是单调的办公场所,办公、商业、社交、休闲、娱乐在这里相互融合。

项目图库

关注我们的微信

用微信扫一扫右侧的二维码,立刻关注我们的微信
分享此页面

扫一扫右侧的二维码,将本页分享给您的好友或朋友圈吧

如对网站文字、图片等内容有任何意见或疑问,请联系: webfeedback@cendes.design

©2023 Cendes 蜀ICP备10202716号  川公网安备 51010402001114号